Mur-Rideau Bois-Aluminium
batimet TM80 SE
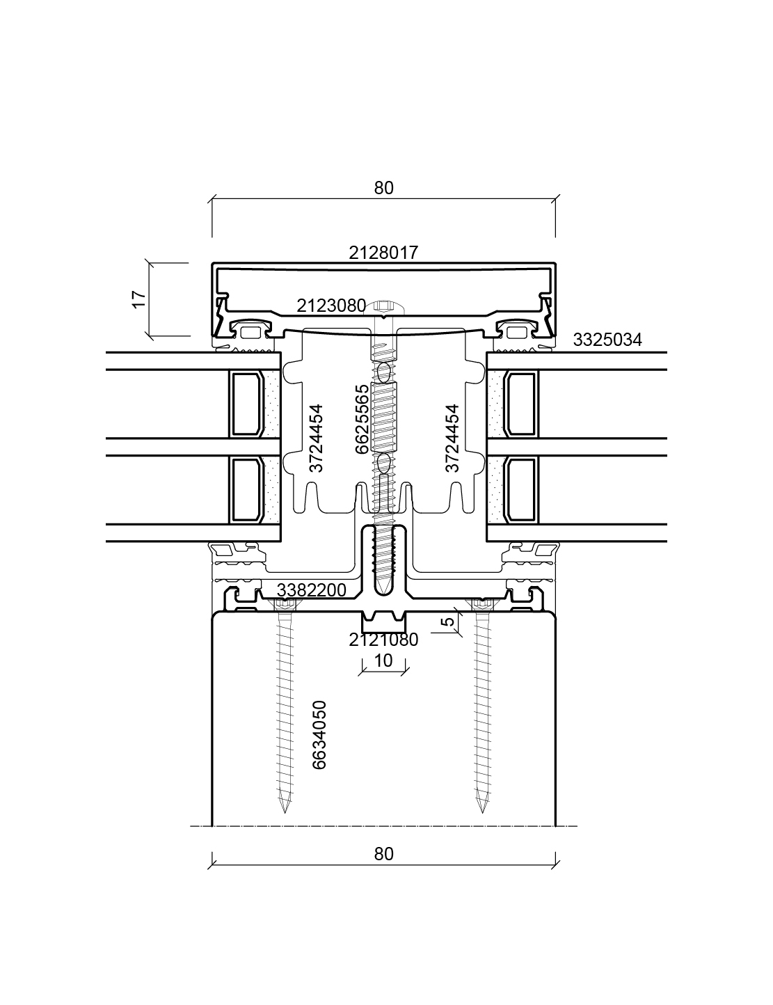
Façade isolante correspondant aux standards de la maison passive construite en mur-rideau avec du bois lamellé ou avec des matériaux en bois d’une largeur de 80 mm. L’épaisseur du profilé correspond aux exigences de construction et statiques. Les dimensions du profilé doivent correspondre aux besoins, et avoir une flexibilité maximale pour répondre aux objectifs des normes pour façade mur-rideau DIN EN 123830. Les exigences spécifiques en termes d’isolation et d’étanchéité de la construction de la façade représentent des normes impératives.
- Epaisseur du vitrage jusqu’à 64 mm
- D’autres types de remplissage jusqu’à 64 mm
- Poids du vitrage jusqu’à 600 kg
- Façade polygonale jusqu’à 45 degrés
Très bon coefficient Uw
Valeur Uw ≥ 0,62 W/m²K
Types de bois
Epicéa, pin, sapin, mélèze, chêne, hemlock, douglas, Multiplex, Pollmeier „Baubuche“
Surfaces
RAL, NCS, DB, aluminium anodisé, métallique, résistant aux intempéries, résistant à l’eau salée. Le revêtement est conforme aux normes de qualité des éléments de construction en aluminium de GSB-International (GSB AL 631), ou les normes QUALICOAT.
Raccords d’angle
Raccords d’angle sans feuillures visibles, anticorrosif durable
| DIN EN 12152 | Perméabilité à l'air: Classe AE |
| DIN EN 12154 | Étanchéité à l'eau: Classe RE1200 |
| DIN EN 13116 | Résistance au vent: 2.0 kN/m² |
| DIN EN ISO 10077-2 | Uw ≥ 0,62 W/m²K |
| DIN EN ISO 717-1 | Isolation acoustique: RW C; Ctr = 48 dB |
| DIN EN 1627 | Effet anti-effraction: RC1N, RC2N, RC2, RC3 |
| DIN EN 13049 | TRAV Sécurité antichute: Catégorie A, Classe 5 |
| DIN EN 12179 | Résistance aux chocs: Classe I5/E5 |
| Admission DIBT | Homologation générale de la surveillance de travaux DIBt. (l’Institut Allemand de la Technique du bâtiment) Z-14.4-669 |
| Admission ETA-Danmark | Connecteurs mur rideau, ETA Danmark - ETA-18/0033 |




